Stiebel Eltron DEL18PLUS Instantaneous 3 Phase Electric Water System DEL 18 PLUS
Stiebel Eltron DEL18PLUS Instantaneous 3 Phase Electric Water System DEL 18 PLUS is backordered and will ship as soon as it is back in stock.
Couldn't load pickup availability
Delivery and Shipping
Delivery and Shipping
Add some general information about your delivery and shipping policies.
No other instantaneous water heater with 3i technology has such a wide range of features as the DEL Plus. With backlit multifunction display, temperature memory, childproofing and ECO mode, it offers best-in-class comfort and convenience. The energy and water saving ECO mode can be used to limit the maximum flow rate of the DEL Plus to enable a constant DHW temperature, even where inlet temperatures are low.
The DEL Plus is suitable for supplying hot water to several draw-off points (single and group supply), e.g. simultaneous supply to bathroom and kitchen. Sealed unvented, pressure-tested appliance for use with all commercially available pressure taps. The DEL Plus water heater requires no safe tray, flue or ventilation.
Electronically controlled instantaneous water heater with 3i technology. Accurate temperature delivery up to the maximum output. Temperature selection from 20 to 50°C via rotary selector, temperature adjustment for showers in 0.5 °C increments. Backlit multi-function display to show set temperature, current power consumption, status and service indication. Selectable ECO mode. Memory function for 2 programmable temperatures of choice. Pivoting appliance cover and programming unit for increased operating convenience in under-sink installations.
Saves energy and water by means of electronic output control with 3i technology. 3 sensors ensure that the selected temperature is accurately achieved. For this, only the actual required amount of energy is expended; there is no need to add cold water at the tap. This ensures maximum energy efficiency. ECO mode can be individually selected for economical operation. Suitable for preheated water (e.g. in solar thermal and heat pump systems).
Rapid bare wire heating system, suitable for hard and soft water. Electronic safety concept with air bubble detection
-
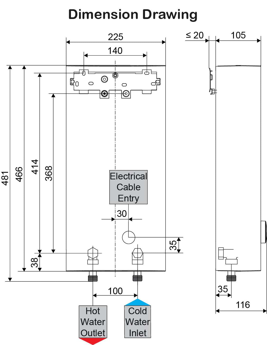
Height (mm)466 mm
-
Width (mm)225 mm
-
Depth (mm)116 mm
-
MpnDEL 18 PLUS
-
Model numberDEL 18 PLUS
-
ColourWhite
-
Product fuelElectric
-
Features✓ Made in Germany ✓ Maximum hot water output temperature 50°C, no tempering valve needed ✓ Save energy and water – 3 stage ECO mode ✓ Electronically controlled ✓ Temperature memory function keys ✓ Tempertaure limiting function for childproofing (anti-scalding protection)
-
Manufacturer warranty5 Years
-
InstallationExternal
-
IgnitionElectronic
-
More Specs
- Rated output (415V): 19.4kW
- Rated current (415V): 27Amp
- Phases: 3/PE
- Electrical Installation: As per AS/NZS3000
- Installation requirements: AS/NZS3500.4.2 & local requirements
- Switch on flow rate (minimum flow rate required to switch on the water heater): 2.5L/min
- Permissible operating pressure: 1000kPa
- Temperature adjustment: 20-50°C
- IP Rating: IP25 (IP24 at electrical connection finished walls)
- Weight: 3.2kg
- Colour: white
- Nominal capacity: 0.4L
- Approvals: WaterMark Lic No. WMKA00301, AS3498
- For one/several draw off points: Yes/Yes
- Heating system: Bare wire
- Accepts pre-heated water (solar): Yes (incoming water must not exceed 50°C)
- Programmable temperature: Yes







